Watertown St
Status: On-going
Team: FDA (Architect), Terry Morris (Attorney), Annie Gilson (Landscape), Consulting Engineering Services (ME/FP)Danel Bonardi (Structural), Spruhan Engineering (Civil)
Location: Newton, MA
Project Type: Mixed-Use, Residential + Retail
Townhouses on Retail
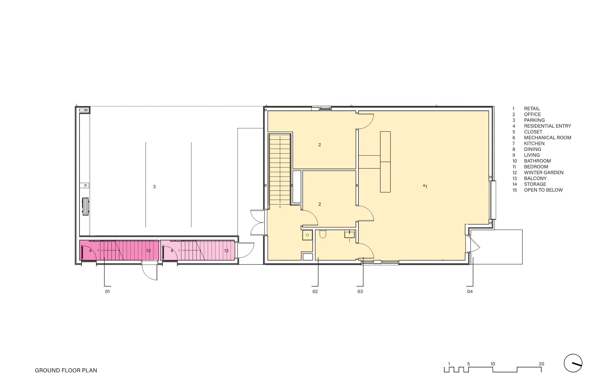
Located on a vibrant street in Nonantum, Newton, this project replaces an existing single-family home with two townhouses and a retail space, all within the as-of-right zoning envelope on a small lot of less than 6,000 square feet. The second townhouse will generate rental income for the client, who plans to relocate their business to the retail space and occupy one of the townhouse units above. By eliminating the need for a common area and a second stair, the townhouse design increases the floor area of each dwelling unit compared to a typical apartment layout with a corridor.
Flat Roof vs. Gable Roof
The project departed from a flat roof in favor of a gable roof to better fit the surrounding context and maximize the requested floor area. While the existing building lacks significant architectural value, its gable-roofed brick style contributes to the collective character of the neighborhood, which has evolved over time. By adjusting the building volume to include a gable roof, the design integrates more harmoniously with the neighborhood without sacrificing much of the floor area. Additionally, many buildings along the street are single-family homes converted into commercial spaces, typically with simple, large windows on the ground floor. The ground-level retail space will feature similarly proportioned windows, creating a cohesive silhouette when illuminated at night.
First Floor Plan
Second Floor Plan
Third Floor Plan
“a good interpretation of an old form in an evolving and diverse neighborhood, that it was sensitive to the site, and echoed the historic neighborhood”
Comment by Historical Committee
Landscape Plan
